Transformační centrum Ústeckého kraje
Transformační centrum Ústeckého kraje

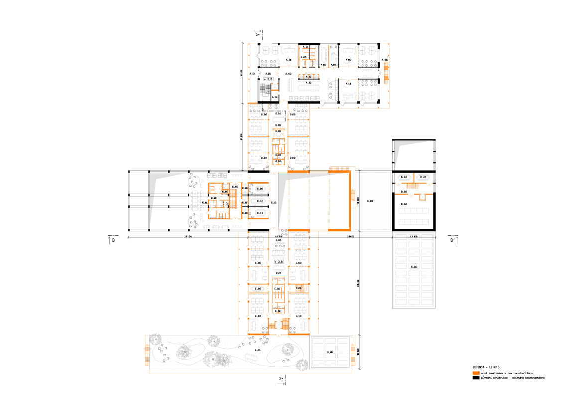
Vznik Transformačního centra je jedinečnou příležitostí, jak dát okolní lokalitě nový a výrazný impulz.
K adaptaci přistupujeme s důrazem na hledání a využití kvalit a charakteru původní školy, které spatřujeme především ve skeletové konstrukci jednotlivých objektů, pavilonovém charakteru celého areálu, důrazu na utilitárnost a funkčnost budov a v neposlední řadě také ve vzrostlé zeleni, která komplex prostupuje.

V návrhu definujeme těžiště areálu, které bude maximálně průchozí, komunikující a otevřené do veřejného prostoru.
Hlavní předprostor nekončí hranou domu, ale prochází skrze objekty a část areálu až do nově navrhovaného veřejného parku. Snažíme se do místa přinést maximálně otevřenou, komunikující a civilní architekturu jakožto obraz soudobé, respektive budoucí veřejné instituce.

2. místo ve veřejné architektonické soutěži

místo / Ústí nad Labem

rok / 2023

velikost / 4 600 m2

fáze / soutěžní návrh

architekt / Tomáš Hanus, Jan Holub

spolupráce / Jana Watersová