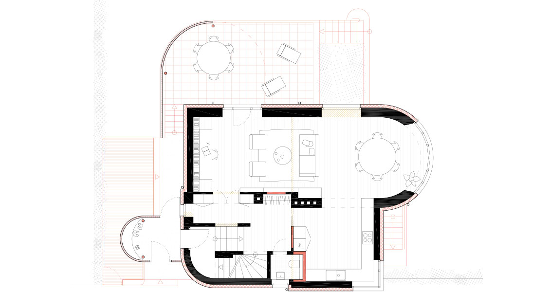
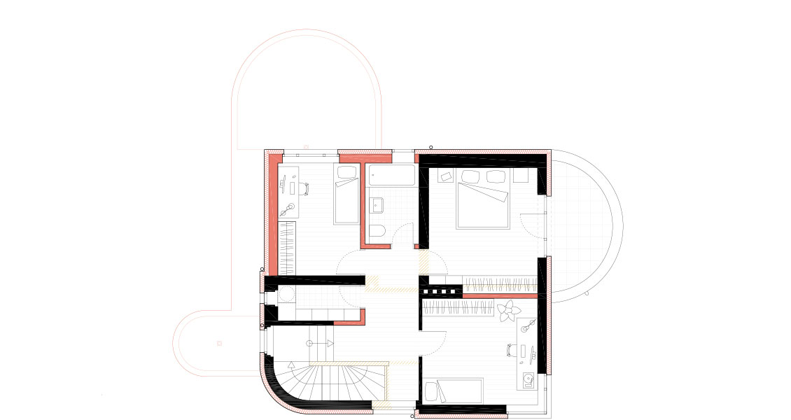
Rekonstrukce a přístavba Weissfeitova domu
Rekonstrukce a přístavba Weissfeitova domu

I když se tento dům z přelomu 20. a 30. let snažil být modernistickou architekturou, je zde stále patrný velký vliv tradiční architektury. 

Některá naznačená až nedokončená témata pomáháme domu posunout dál. Překvapivé momenty stavby vycházející z doby vzniku zanecháváme, nově navazujeme v duchu modernismu a plynule přecházíme do vyjadřovacích prostředků současného světa. 

Není důležité, aby bylo rozpoznatelné, co je stávající a nově dostavěné. Podstatné je, aby dům fungoval jako celek. Znejistění diváka ohledně vývoje domu chápeme jako kvalitu.

místo / České Budějovice

rok / 2023

velikost / 270m2

fáze / studie

architekt / Tomáš Hanus, Jan Holub