Mateřská škola Želešice
Mateřská škola Želešice

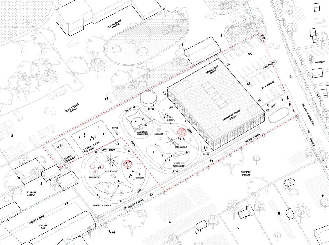
Mateřskou školu jsme se rozhodli navrhnout jako objekt bez nadbytečného sentimentu, přesto však korespondující s prostředím okolních zahrad a zahrádek na okraji drobné obce. 

Školku jsme navrhli jako dvoupodlažní objekt, jehož vnitřní život se odehrává kolem atria s pobytovým schodištěm a galerií s knihovnou. Každá třída nabízí kontakt jak se sdílenými vnitřními prostory, tak venkovními terasami a okolní zahradou. 

Důležitou součástí budovy jsou přestřešené prostory na jejím perimetru, které jsou velmi důležité pro pobyt ve venkovním prostředí za nepříznivého počasí, zároveň tvoří také důležitý stínící prvek a také plynulý přechod do zahrady.

Odměněný návrh v architektonické soutěži / 4.-6. místo

místo / Želešice

rok / 2023

fáze / soutěžní návrh

architekt / Tomáš Hanus, Jan Holub