Domov pro seniory Tábor
Domov pro seniory Tábor

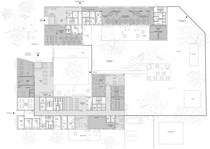
Domov pro seniory, důležitá typologie, kterých bude v budoucnu stále přibývat.
Protože se jedná o místo, kde mnozí lidé stráví svůj poslední čas, hledáme obraz prostředí, ve kterém by se jeho obyvatelé cítili dobře a přirozeně.

Ačkoliv se jedná o pozemek nešťastně umístěný mezi panelovým sídlištěm a nemocnicí, snažíme se návrhem vytvořit místo, se kterým se budou jeho obyvatelé umět identifikovat.
Kromě samozřejmého vnitřního porostředí tak vzniká svět zahrady s altánem, předprostor vstupu se stromem a lavičkou, různé typy předzahrádek, lodžie, balkóny a terasy...

Prostředí domova by nemělo být anonymní.

místo / Tábor

rok / 2014

velikost / 4 120m2

stavební náklady / 130mil. CZK

fáze / soutěž, zvýšená odměna

architekt / Jan Holub

spolupráce / Richard Zacpal