Byt pro kamarády
Byt pro kamarády

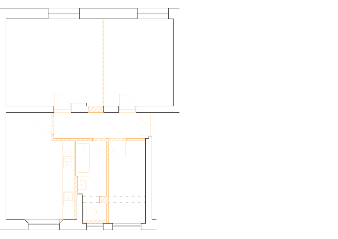
Rekonstrukce menšího bytu v Českých Budějovicích.
Vybourání několika příček umožnilo propojit obytnou část v jeden
celek, přinést do interiéru scházející světlo a bydlet bez zbytečné
chodby a zádveří.

Charakter interiéru určuje vědomá hra s nedokonalostí,
jednoduchými detaily a původními strukturami navrstvenými v čase.
Radost z živelného procesu i výsledku na obou stranách.

místo / České Budějovice

rok / 2021

fáze / projekt pro stavební povolení

velikost / 78m2

architekt / Tomáš Hanus, Jan Holub

fotografie / Ondřej Bouška